Перейти к контенту
Меню

Заказать проект:  +7(985) 363 37 65 

Страница просмотрена 3429 раз.

Перекрытие по деревянным балкам

Для многих из нас это только пол или потолок, смотря откуда смотреть, который простирается от стены к стене и, который в нашем представлении ассоциируется со словами незыблемый, твердый, ровный. Поэтому мы спокойно можем читать лежа на диване в то время, как наши соседи активно танцуют.

Основная роль перекрытия в доме это нести на себе все, что над ним находится, т.е. не только людей и мебель, но и стены, другие перекрытия, расположенные выше, крышу, снег на крыше, землетрясение, ветер или наводнение, а также самое себя и затем передать эти нагрузки дальше на грунт. Поэтому нужно знать из каких элементов состоит перекрытие, какую роль играет каждый из этих элементов и как определить, какие материалы нужны для его изготовления.

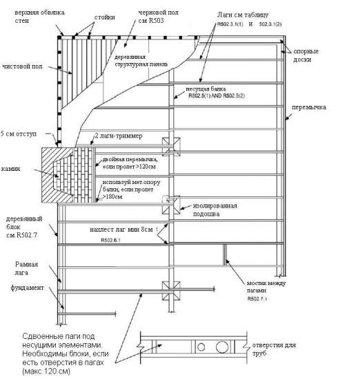
Перекрытие по деревянным балкам

Деревянное перекрытие с лагами создает упругий пол с возможностью сокрытия труб и проводов внутри.
Деревянное перекрытие с лагами создает упругий пол с возможностью сокрытия труб и проводов внутри.

Перекрытие в частных каменных жилых домах может быть бетонным или деревянным,а в деревянных домах только деревянным. Перекрытия из дерева делают уже тысячи лет, поэтому накоплен огромный опыт в его изготовлении, который мы попробуем изучить, чтобы можно было выбрать тот тип перекрытия, который нам лучше всего подходит.

Деревянное перекрытие состоит из балок, лаг, чернового пола, обшивки потолка и утеплителя, а также крепежа, который тоже играет не последнюю роль.

Сначала определимся с терминологией, а то в русском языке какая-то путаница. Балка (beam англ.) это бревно или брус большого сечения из массива древесины, клееный или LVL, или 2-4 доски, сколоченные вместе. Балка служит для создания промежуточной опоры. Лага (joist англ.) - тонкая доска или конструкция заводского изготовления, на которую непосредственно крепится черновой пол, а снизу потолочное покрытие.

Схема деревянного перекрытия

Чтобы понять зачем нужно такое деление, нужно знать от чего зависит прочность и стабильность перекрытия. Это знание основывается на свойствах древесины и материалов изготовленных из нее. Если коротко, то прочность древесины зависит от вида древесины, все, что нам нужно знать это то, что лиственница прочнее сосны, а сосна прочнее ели и, что северная сосна прочнее сосны из средней полосы, а другая древесина нас не интересует, потому что в перекрытиях используются только эти виды. Еще нужно знать, что древесина, которая может использоваться для балок и лаг бывает 3-х сортов-экстра, 1-го и 2-го сорта, чем выше сорт тем прочнее. Главное, чтобы в ней было мало сучков. Зная какую древесину мы используем и зная расстояние, которое нам нужно перекрыть, мы можем подобрать сечение балок и лаг. Чем больше расстояние между опорами, тем больше прогиб при одинаковом давлении на балку. Чем больше соотношение высоты балки или лаги к ее толщине, тем меньше прогиб, а значит прочность выше. Поскольку размеры комнаты, мы не можем уменьшить, то мы должны увеличить либо сечение лаги, либо расстояние между ними, но иногда это сделать сложно, тогда то и нужно применять балки (таблица длин и сечений прогонов), чтобы уменьшить пролет (пролет и шаг лаг смотрите в таблице).

Делать перекрытие полностью из балок неэффективно, поскольку, не смотря на то, что из-за прочности их можно располагать дальше друг от друга, это делать не стоит, т.к. прочность и стабильность перекрытия зависит не только от них, но и от покрытия пола, которое складывается из чернового (см. таблицу толщин чернового покрытия) и чистового покрытия и оно-то тоже должно быть прочным. Но, как известно, листовой материал и половая доска чем прочнее и толще, тем дороже. Таким образом, сочетая различные материалы перекрытия, можно получить прочное, стабильное и одновременно с этим недорогое перекрытие.

ПОХОЖИЕ СТАТЬИ

Как сделать каркас потолка
Конструкция потолка из гипсокартона
Сдвоенные лаги и консольные балки
Несъемная опалубка перекрытий